BACHELORTHESIS - SCHULE FINDET STADT

sdf

Bildung durch räumliche Vielfalt

Die moderne Schule sollte ein Lernort für jedermann sein. Die Gründe für eine Zusammenkunft und Mehr­fachnutzung öffentlicher Bildungsstätten haben nicht nur nachhaltige, sondern auch soziale Gesichtspunk­te. In den letzten Jahren haben sich die Anforderungen an eine innovative und zukunftsfähige Schule gewan­delt. Die Schule ist längst kein geschlossenes System mehr und sollte im permanenten Austausch mit der Stadt stehen, denn beide Partien haben viele Berührungspunkte miteinander. Um diesem Wandel Rech­nung zu tragen, soll die neu gestaltete Schule in der Peselmüllerstraße in München als Vorbild dienen.
Durch die „Öffnung” der Schule entstehen Bildungszentren, Synergien und eine gesteigerte Quartiersent­wicklung. Gemeinsame Räume im Bereich des Erdgeschosses der Schule ermöglichen es miteinander und voneinander zu lernen.

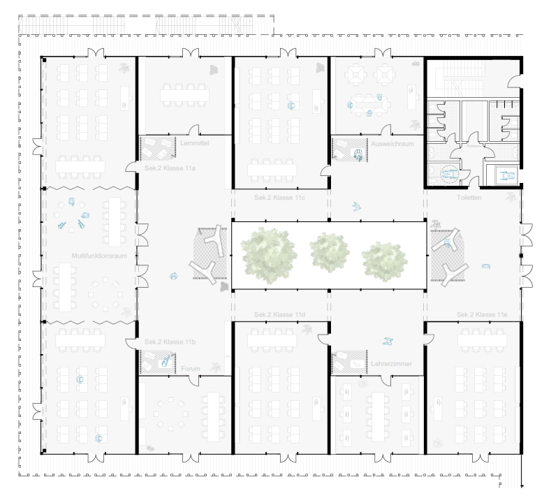
Lernen in Clustern

Die Cluster-Bildung in der Grundrisstypologie bietet zahlreiche Vorteile für das Lernen der Schüler. Im Cluster werden mehrere Klassen zusammengeführt. Durch die Anordnung der Räume entstehen vielfältige Möglichkeiten für unterschiedliche Raumgestaltungen. Dabei werden mehrere Klassenräume mit den Differenzierungsbereichen zu einer Einheit verbunden.
Die Cluster-Einheit besteht aus drei offen gestalteten Klassenräumen, die zusätzlich zum Außenbereich eine Verbindung zur offenen Mitte und dem Cluster-Innenhof aufweisen. Darüber hinaus gibt es im Cluster zwei halb öffentlichere Klassenzimmer, die leicht vom Innenhof abgeschirmt sind. Der ca. 80qm große Differenzierungsraum ist an die zentrale Mitte des Clusters angebunden und kann nicht nur mit den anderen Klassenzimmern verbunden oder abgetrennt werden, sondern kann auch nach Belieben als Multifunktionsraum genutzt werden.

Tragwerk

Die tragende Struktur des Gebäudes besteht aus Wänden und Decken, die aus Fichtenbrettsperrholz gefertigt sind. Die Decken und die Sanitär- und Rettungskerne dienen der Stabilisierung des Gebäudes. Aus Gründen des Brandschutzes wurden alle Treppenläufe und -Podeste der Rettungswege als vorgefertigte Stahlbetonbauteile konstruiert. Die Fluchtbalkone werden durch Unterzüge und eine Abhängung vom Dach ermöglicht. Die Deckenelemente durchdringen die Außenhülle und bilden somit eine durchgehende Balkonkonstruktion. Aufgrund der bauphysikalischen Eigenschaften von Holz besteht hier keine Gefahr der Kondensatbildung. Darüber hinaus fungieren die Deckenplatten, die von innen nach außen verlaufen, als Brandschott, da sie die Außenwände schossweise voneinander trennen. Zusätzlich ist die Konstruktion an einer Brettsperrholzplatte am Dach abgehängt. Die daran befestigten Holzlamellen sind so dimensioniert, dass sie im Brandfall die erforderliche Feuerwiderstandsdauer gewährleisten.

gfgfgfdgff

Erstelle deine eigene Website mit Webador